装配式别墅节能安全生产厂

您的位置:冀中博宇 > 推荐阅读 >

民居别墅,10.2X12.2米二层欧式别墅,带大露台

发布日期:2020-07-21 11:37 浏览次数:
农村别墅基本信息
☑ 占地尺寸:10.2米*12.2米
☑ 占地面积:125平方米
☑ 建筑面积:207平方米
☑ 建筑总高度:10.1米
☑主体造价:24万
这是一栋简洁而不失雅致,优雅而内敛的双层别墅,曲度优美的弧形窗,典型西式风格的罗马柱,鲜艳的红屋顶,充满了浓郁的西式田园风格。该户型空间布局工整紧凑,外观雅致,造型简洁。
整体构造简洁流畅,遵循简约美学的化繁就简,用周到细腻的细节装点,让房子呈现出落落大方的形态,更显恢宏大气。
说明:
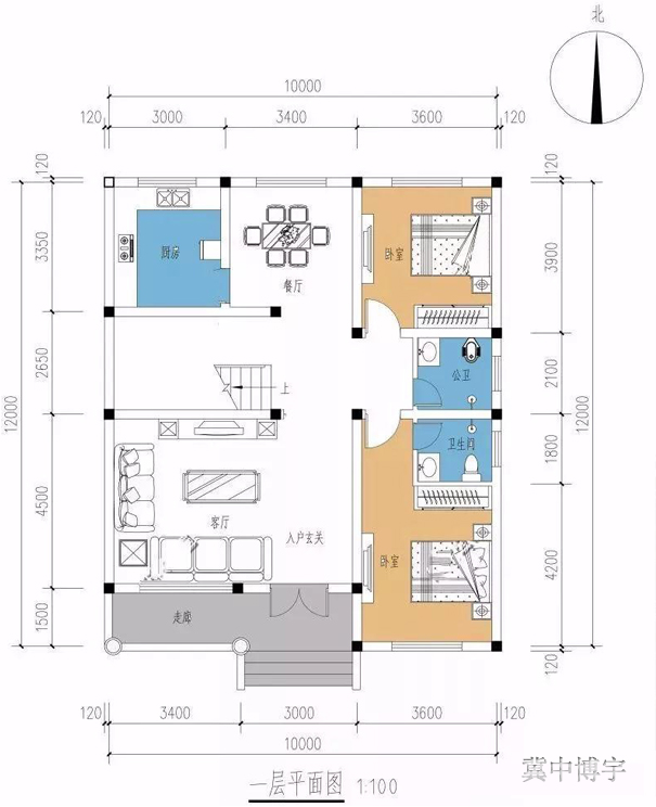
1、入户堂屋设计,符合农村的风俗习惯,非常接地气;客厅与餐厅相连,室内更显通透,提升了空间使用率。
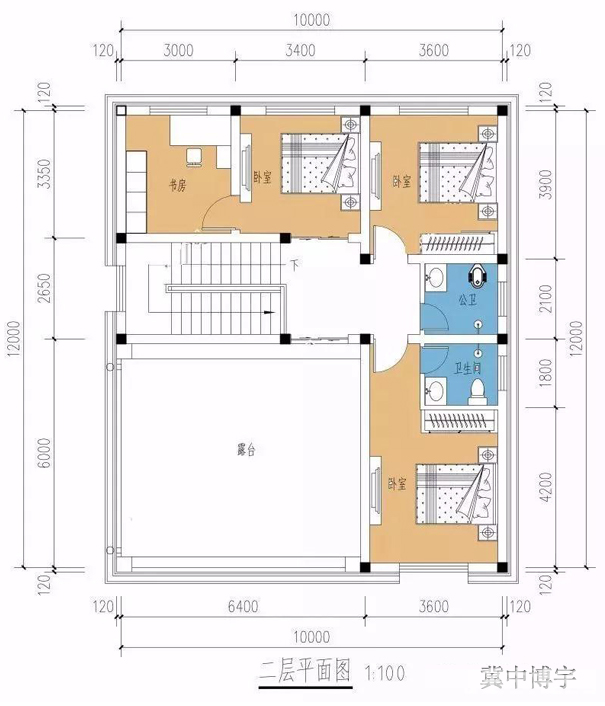
2.挑空餐厅,不同于常见的挑空客厅,设计新颖独特,让室内空间更加高挑;二层卧室都配有独立卫生间,居家生活更加舒适便捷;大面积的露台设计,既能为日常的晾晒提供方便,也是休闲小憩的好去处。