装配式别墅节能安全生产厂

您的位置:冀中博宇 > 推荐阅读 >

新型装配式房屋,10.9X9.1米两层宅院带柴火间农村

发布日期:2019-11-23 14:07 浏览次数:

在以前农村的大多数住宅布局时,“厨房”往往紧贴在住宅旁,使得农村做“柴火饭”,通风排烟,贮备木柴物资等更方便。而如今农村新建住宅的时候,厨房都进入楼房主体之中,“柴火饭”也随之不复存在。小编相信在大多数人美食记忆里,小时候故乡柴火饭的味道依然还萦绕舌根,很多以前对农村生活饱含热爱的人,纷纷去到农家乐,吃一顿“柴火饭”,让记忆的乡愁跟味觉的渴望都得到释放。
户型效果图

建筑主体为简欧风格,主体为钢结构,10.9X9.1米,占地面积102平米。
从这套别墅户型来说,大小适中,适合绝大多数人的宅基地规划。建筑整体色调鲜明,明快大气,洁白精致的罗马柱,欧式风格的表达,给人简洁气派的整体印象!是一栋欧式乡村别墅绝佳的户型选择!
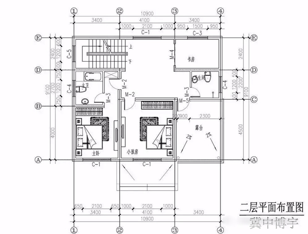
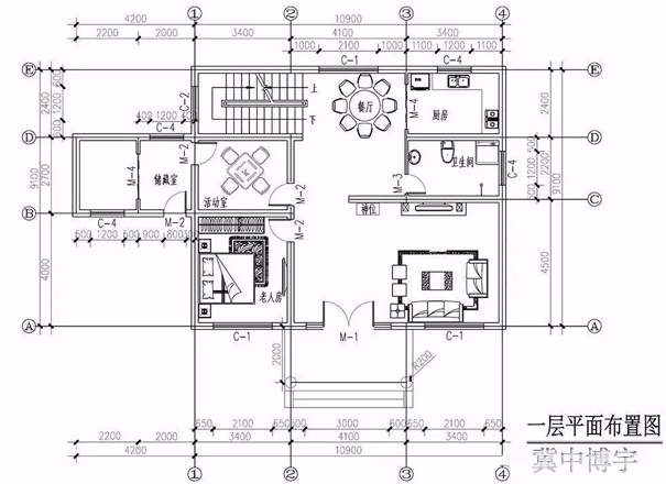
平面图
一层平面设计图:首层包含了客厅(设置了神位),一间可以作为老人居住的卧室。一间棋牌娱乐的活动室,楼梯交通等。
二层平面设计图:二层2间卧室,2间含独卫,一间书房。交通方便,流线清晰。另外还有一块景观大露台,方便平时的放风远眺,将乡村的山水美景收入眼底。
立面造型简洁,色调明丽,大方气派。配合庭院绿植,在整体效果上,令人赏心悦目。
棱角硬朗,造型美观实用,适合乡村。
白色的罗马柱,红色的屋顶,跟乡村的绿水青山构成了一派绝美的乡村田园风光!
小编带您看过这套别墅户型之后,相信您不但是“眼到”——这么契合乡村,造型简洁气派的欧式别墅;也还有“口到”——通过这栋别墅,外置的厨房布局,满足您对于“柴火饭的味觉的需求,对以前农村生活习惯的一种契合;最后就是“心到”——相信您看了这么多,对于准备在农村建新房的您,是不是在心里已经有了自己对于新房子的意愿!
河北呈美集生产、设计、施工于一体,公司附近有正在施工中的案例,欢迎您前来考察。